間取り図とは?
間取り図とは、部屋や空間、オフィスのレイアウトを視覚的に伝えるための図面です。これを作成することで、希望する部屋の大きさや家具の配置を一目で確認でき、住宅の基本情報を把握することができます。
また、間取り図は理想のマイホームやマンションのイメージを建築や不動産会社に伝える際の出発点となります。あらゆる種類の物件やイベントの間取りを設計し、コミュニケーションを円滑にするために活用できる重要なツールです。

間取り図の記号一覧
部屋やオフィスの記号

台所・キッチンと家電の記号

お手洗い・トイレの記号

テクノロジー関連の記号

その他の間取り図の記号

間取りをシミュレーションするメリット
自分でも作れる間取り図作成方法と書き方のポイント
間取り図は通常、建築業者が作成しますが、自分で家の間取り図を作成して理想の住まいを可視化したり、具体的に伝えたい方も多いでしょう。そんな時には、間取り図作成サイトやツールを活用して、簡単に理想の間取り図を作成してみましょう。初めて間取り図を作成する方でも、豊富なアイコンや記号、例やテンプレートが揃っているLucidchartなら安心して夢のマイホームをデザインできます。
間取り図の書き方6ステップ:
-
テンプレートの選択:
- まずは、間取り図の例や空白のテンプレートを選びます。
-
間取り図アイコンと記号を活用:
- 左側に表示されている専門記号やアイコンをドラッグ&ドロップして配置します。
-
お部屋、窓などの大きさ、広さの確認:
- ツール内で自動的に大きさを確認できるので、確認したい場所を一つ一つチェックしていきましょう。
-
家具や家電のチェック:
- 間取り図内に置かれた家具や家電の位置を確認し、気に入らない場合はアイコンをクリックして位置を変更します。
-
動線や他のレイアウトの再確認:
- 冷蔵庫やソファーの場所、ピアノや本棚、ダイニングセットなどのレイアウトを再確認します。
-
共有・印刷:
- 作成が完了した間取り図を印 刷して、建築家に具体的なイメージを伝えましょう。
間取り図を作成するにあたって考慮すべき点
新規スペースや既存スペースのリニューアルか
空間計画は新しい建造物における重要な要素ですが、既存のスペースについて再考し、よりよい活用方法を検討する上でも同様に重要です。たとえば、内装が未完の高層オフィスビル、技術変革に伴う組織の急成長、ダウンサイジングや再構築など、多くの要因により空間計画の需要は増加しています。これにより、建築事務所において個別のサービスとして提供されるようになっています。
動線と交通流
生活、仕事、買い物、集いの場となる空間では、室内の配置やスペース間の流れが環境の印象と有用性に大きな影響を与えます。動線と交通流の良し悪しは、計画対象となる空間の性質によって異なります。たとえば、小売店舗の場合、来店者が空間全体を歩き回るような配置が適していますが、アートギャラリーでは、制約が少なく、ボトルネックの生じない配置が望まれます。床面積の区切り方によって、同じ面積の室内でも、サイトライン(観察者から対象物や対象領域への視線)により全く違って見えることがあります。一般的には、空間内に視覚的な障壁が少ないほど、空間が広く見える傾向があります。
間取り図と風水
フローの概念は、単に空間内の人々の物理的な移動のみを指すものではありません。調和のとれた環境を生み出す思想で ある風水は、5,000年以上にわたり、私的空間と公共空間のデザインに用いられてきました。現代でも世界中の風水専門家が、古代から続く厳格なルールに基づき、新建築物のデザインや既存環境の再配置を行っています。例えば、上海に建設された最新のディズニーテーマパークの着工前には、風水専門家によるコンサルテーションが行われました。
以上のように、間取り図の作成には新規および既存スペースの用途、動線と交通流、さらには風水の原則など、さまざまな要素を考慮することが重要です。
4分でわかる Lucidchart データベース ツールの基本的な使い方
- さっそく最初の図を作成してみましょう。文書をインポートするか、テンプレートを使用するか、空白のキャンバスで最初から作図を始めます。
- 図の図形や記号、線を追加します。
- [機能を検索] を使えば、図内の必要な情報を検索できます。
- 図をチームと共有して、共同作業からフィードバックを得ることができます。
*このビデオは英語のみとなります。予めご了承いただけますようお願いいたします。
住宅やオフィスの間取り図例
間取り図は基本的住宅の坪数や面積によって異なってきます。自分の必要性に近い間取り図の例を参考にして下さい。
Lucidchart の間取り図のレイアウトの例には以下のようなものがあります。他の間取り図の参考一覧にアクセスしたい場合には、こちらよりお好きなテンプレートを選択してください。
住宅の間取り図の例

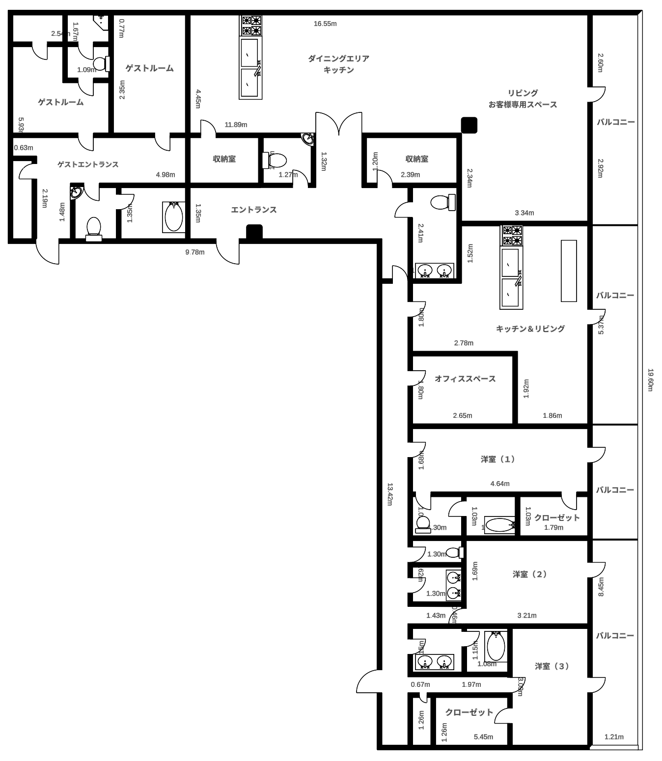
オフィスの室内の間取り図の例
以下のオフィスの例では、キッチンや食堂、待合室、会議室などのイメージ例を表しています。オフィス内への入口より迷わず他の部屋まで辿り着けるレイアウトとなっており、シンプルで建築家にもわかりやすい間取り図となっています。

オープンコンセプトレイアウトの間取り図の例
オフィス空間のトレンドは、個別のオフィスからブース、オープンスペースへと変遷してきました。オープンプランには利点も欠点もありますが、建築コストが低水準で、人事異動に対応しやすい形式であるため、しばらくは人気が続くと考えられます。どんなスタイルのレイアウトを選択する場合でも、オフィスの新設や再配置にフロアプランを利用することで、時間と費用を節約することができます。企業にとっては見逃せない利点です。

公共スペースの間取り図の例
スタッフや多数の利用者が空間内を動き回る美術館、学校、役所や病院などの施設では、安全性、セキュリティ、出入口、業務や集会のためのスペースなどに特別な配慮が必要となります。適切な空間設計のためには、フロアプランを使ったレイアウトが非常に重要な第一歩となります。また、こうした規模の大きな建物では、利用者を案内するためのわかりやすいフロアプランも必要となります。こうしたプランは、順路案内のサインの一環としても使えます。
例やテンプレートから作成できる簡単間取り図
Lucidchartのテンプレートを使用すれば今までになかったほど、素早く簡単に間取り図を作成することができます。Lucidchartのユーザーフレンドリーインターフェースのお陰で、ドラッグ&ドロップだけで間取り図やマイホーム専用のレイアウトとイメージをさっと仕上げることができます。
Lucidchartの無料間取り図サイトでを間取り図を作成
手描きや他のプログラムなど、間取り図の作成が必要以上に難しくなるツールをわざわざ使う必要はありません。Lucidchart を使えば、あらゆる空間や場所の間取りを無料でシミュレーションし、好みに応じてカスタマイズすることができます。以下では、Lucidchart での間取り図がスピーディかつ簡単になる理由を余すところなくご紹介しています。
- テンプレートでデザイン作業がシンプルに。間取り図の作成が初めてでも、便利でカスタマイズ可能なテンプレートを使用すれば数分で作図が始められます。
- 必要な要素がすべて揃ったドラッグ・アンド・ドロップで使える図形ライブラリ。サイズに合わせてスケーリングされ、最大限に使いやすく調整されたオブジェクトが揃っています。充実したライブラリから必要な図形をドラッグし、希望の場所にドロップして作図を開始。オブジェクトはカスタムライブラリに保存して後で使用することができます。
- クラウドで共同作図。Google Drive、Confluence、JIRA、Jive とのインテグレーションで、シームレスなチームワークを実現。Lucidchart の共同編集機能を使って、リアルタイムで閲覧、編集、コメントやチャットが可能です。
- 共有や公開も自在。PDF、JPEG、PNG 画像で必要なサイズに印刷したり、ソーシャ ルメディアやメールでフロアプランを共有して常に最新の図の状態で共同作業を続けることができます。
- プラットフォームを超えて使える機能性。高い互換性が特長の Lucidchart は、Windows や Linux、OS Xなど、どのオペレーティングシステムでも使えます。
- Visio と Gliffy の間取り図をインポート/エクスポート。 過去に作成した図を簡単かつスピーディにセキュアな一つの場所にまとめ、既存の図をブラウザで自在に編集することができます。
- どこでも好きな時に使える間取り図アプリ。iOS アプリを使えば、デスクトップ以外でもデザインが可能に。外出先でもモバイルデバイスやタブレットからデザインができます。



